埼玉県吉川市
T様邸
リノベーション耐震
【埼玉県吉川市】T様邸2世帯から1世帯へリノベーション+耐震工事
-
Before
After
- 工期:1.5か月
- 費用:2,727,272円
- 建物種別:戸建て
吉川市T様邸内部リノベーション工事は完了しました。
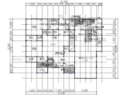
T様邸は10年前に新築し2世帯住宅で玄関と水回りが2つに分かれている住宅でした。
家族構成の変化により1世帯と変化し水回りと玄関を一つに統一し生活空間を広くするというご要望。
水回りと玄関を1つにしてLDKとLDを拡げ生活空間を一新する提案をさせていただきました。
間取りを変更し既存のお風呂洗面所の一つを解体しその位置にキッチンをもってくることによりLDKが広くなり、元々の玄関はLDにつなげスリット格子を取り付けることにより、広々なLDになりました。
間取りが変化しますので耐震診断も行い耐震壁をつかった耐震補強をプラスしてのリノベーションとなりました。

水回り位置の大幅変更 キッチンの移動です。
既存のキッチンを解体した洗面所・風呂のスペースに移動、シンクも中央に持ってくることでカフェ風のナチュラルなイメージになりました。
LDKが広々となりました。ドアからは洗面所・風呂に繋がっています。

既存玄関を解体しLDのスペースにしました。
スリット格子を入れてイメージアップしています。
元々2世帯住宅の玄関だった場所です。
家族構成の変化により玄関を解体し既存のLDに加えました。
柱と壁の間にはスリット格子を入れてデザイン性をアップさせています。

もともとのキッチンの位置を変えてリビングダイニングを低くすることと、キッチンですぐに食事もできるようにキッチンを置く方向にもこだわりました。


内装まで完了すると南欧風の美しいお部屋に様変わり。お施主様の奥様も出来具合に笑顔で喜んでおられました。
吉川市T様邸 内部リノベーション工事
吉川市T様邸内部リノベーション工事をしています。


間取りの変更、新規キッチン、既存キッチンの移動、既存柱の撤去による耐震補強壁の新規取付を行いました。

木工事もどんどん進行していきます。
吉川市T様邸大規模改修は玄関格子取付をしています。
吉川市T様邸大規模改修工事は玄関格子の取り付けを行っています。

【吉川市】T様邸は内装リノベーション工事中です。
吉川市T様邸は内装リノベーション工事木工事中です。





現場アプリにて現場大工から工事状況の写真が送られてきます。
今の時代はこういったアプリで情報のやり取りをして働く時間を効率化させることが大事です。
吉川市T様邸は内部改修工事です。
吉川市T様邸は内部改修工事です。


筋交いを取った場所がありますのでそこに耐力面材であるガーディアンウォールを施工しています。
今はSNSで職人さんとやり取りができるので管理も大分楽になりました。
もちろんチェックすべきところは現場でチェックしますが写真で施工状態が分かるのは我々の働き方改革にもプラスになっています。
【吉川市】T様邸 内装改修工事が始まりました。
吉川市T様邸内装工事が始まりました。




間取りの変更がありますので養生をして一部解体工事も始まっています。木工事が続きますが安全第一で行います。宜しくお願い致します。

